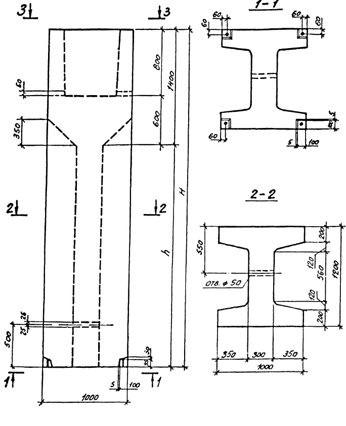
Блок-стакан верхний ВБ 9-12-57-3 предназначен для использования в строительстве железобетонных конструкций. Он обеспечивает надежное соединение элементов и обеспечивает устойчивость всей конструкции. Блок-стакан верхний ВБ 9-12-57-3 имеет высокую прочность и долгий срок службы, что делает его идеальным выбором для строительства различных объектов.









