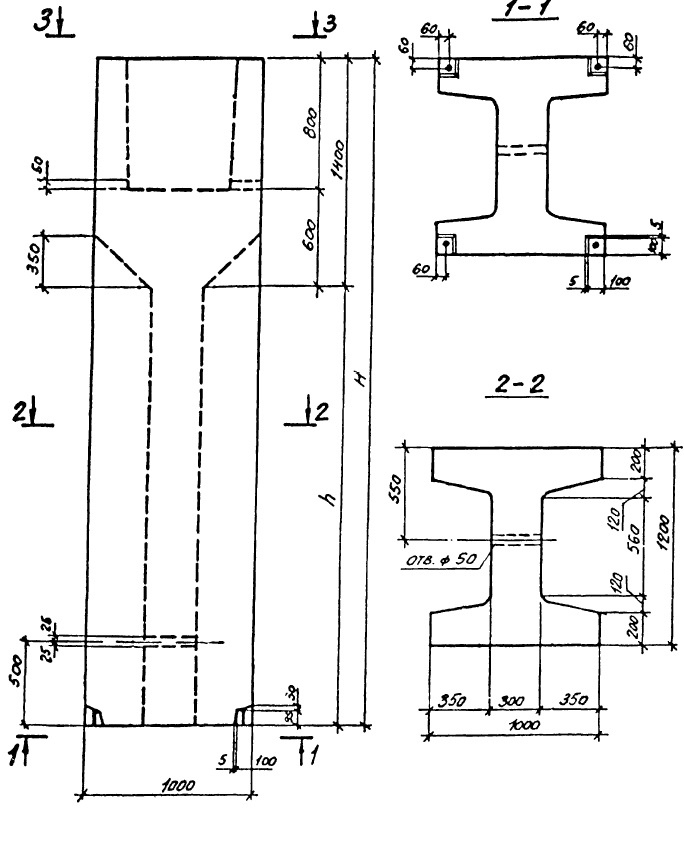
Блок-стакан верхний ВБ 9-14-21-2 предназначен для использования в строительстве железобетонных конструкций. Он используется для соединения верхних частей стен и перекрытий, обеспечивая прочное и надежное крепление элементов конструкции. Блок-стакан верхний обладает высокой прочностью и устойчивостью к воздействию внешних нагрузок, что делает его идеальным выбором для строительства зданий и сооружений.









